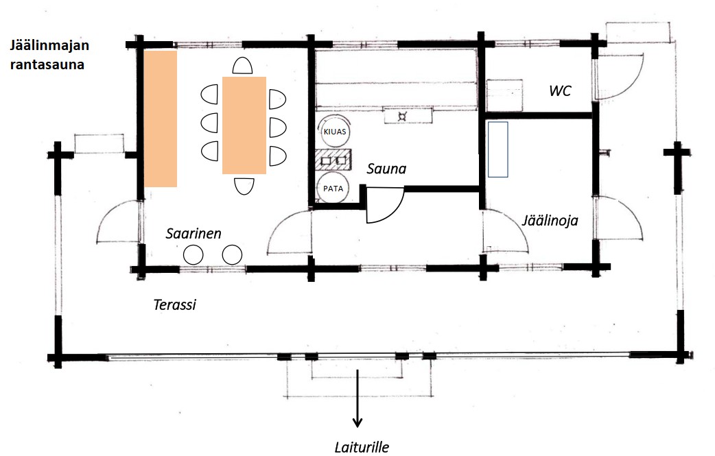
Rantasauna

Idyllisellä paikalla Jäälinjärven rannalla sijaitseva vanha rantasauna tarjoaa ainutlaatuisen saunakokemuksen. Sauna on peruskorjattu kauttaaltaan niin, että se on käytettävissä myös talvella. Saunatila on olemukseltaan alkuperäinen. Kiuas lämpenee puulla, ja vettä voi lämmittää muuripadassa – käytettävissä toki on myös suihku. Lauteille mahtuu hyvin kerrallaan kuusi henkilöä.

Rakennuksessa on kaksi pukeutumistilaa. Näistä isompi, Kokoushuone Saarinen, mahdollistaa myös saunakokouksen 8 – 10 hengelle. Tilassa on näyttölaite, jääkaappi, kahvinkeitin ja mikro sekä kertakäyttöastioita. Valaistus on säädettävissä halutun tunnelman mukaan.

Pieni pukeutumistila Jäälinoja tarjoaa lisää säilytystilaa esimerkiksi vaatteille tai mahdollistaa eri sukupuolten samanaikaisen saunan käytön.

Saunarakennuksessa on myös WC.

Saunalta johtaa laituri Jäälinjärveen, jonka vesi on laadultaan erinomainen uimiseen. Saunapolun varrella on nuotiopaikka.

Kuvagalleria

Suurenna kuva klikkaamalla sitä.

Talvinäkymä saunalle
Kokoustila Saarinen
Saarisen varustelua
Saunan löylyhuone
Saunarakennuksen pohjakuva
Saarisen vesipiste
×